Nowy lokal 5-pokojowy w zabudowie bliźniaczej ul. Wrzosowa 3/1 Wiry
Lokal: ul. Wrzosowa 3/1, 62-051 Wiry
Działka: nr ewid. 1/42
Powierzchnia działki: 205,5 m2
Na sprzedaż nowoczesny lokal mieszkalny w zabudowie bliźniaczej, położony przy ul. Wrzosowa 3/1 w miejscowości Wiry. Nieruchomość stanowi doskonałą propozycję dla rodzin poszukujących komfortowej przestrzeni do życia w spokojnej okolicy, z jednoczesnym szybkim dostępem do infrastruktury miejskiej.
Lokal ma powierzchnię użytkową 97,26 m², został zaprojektowany w funkcjonalnym, dwukondygnacyjnym układzie, który zapewnia wyraźny podział na strefę dzienną i prywatną. Dodatkowym atutem jest działka o powierzchni około 250,5 m2, umożliwiająca aranżację ogrodu, tarasu lub strefy wypoczynkowej.


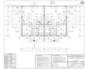
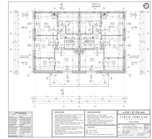
Funkcjonalny rozkład pomieszczeń
Parter to przestrzeń dzienna, idealna do wspólnego spędzania czasu. Znajdują się tu:
- wiatrołap (przedsionek),
- komunikacja,
- gabinet (idealny do pracy zdalnej lub jako pokój gościnny),
- kuchnia otwarta na salon,
- przestronny pokój dzienny,
- łazienka,
- klatka schodowa.
Piętro stanowi strefę nocną, w której zaplanowano:
- komunikację,
- trzy sypialnie,
- garderobę,
- drugą łazienkę.
Dodatkowo do dyspozycji mieszkańców pozostaje strych, który może pełnić funkcję magazynową.
Standard i technologia
Budynek oddawany jest w stanie deweloperskim, co daje możliwość pełnej personalizacji wnętrz zgodnie z własnym gustem i potrzebami. Lokal został wybudowany w 2025 roku, z wykorzystaniem nowoczesnych technologii budowlanych.
- dach dwuspadowy,
- pokrycie dachu: dachówka cementowa,
- doprowadzone media: woda, prąd, gaz, kanalizacja,
- instalacja teletechniczna oraz domofonowa.
Komfort i otoczenie
Do lokalu przynależą 2 miejsca parkingowe, co znacząco podnosi komfort codziennego użytkowania. Dojazd do nieruchomości prowadzi drogą szutrową, zapewniającą kameralny charakter inwestycji.
Lokalizacja przy ul. Wrzosowa 3/1 w Wirach łączy w sobie spokój podmiejskiej zabudowy z dobrą komunikacją i dostępem do niezbędnych usług. To idealne miejsce dla osób ceniących ciszę, prywatność oraz wygodę nowego budownictwa.
Podsumowanie
Jest to atrakcyjna oferta z rynku pierwotnego, skierowana do rodzin, par oraz osób pracujących zdalnie, które szukają przestronnego, nowego lokalu z ogrodem w miejscowości Wiry. Przemyślany układ, wysoki potencjał aranżacyjny oraz nowoczesna forma zabudowy sprawiają, że nieruchomość spełni oczekiwania nawet wymagających klientów.
| Lokalizacja | Wiry |
| Cena | 835.500,00 zł |
| Cena /m2 | 8 590 zł/m2 |
| Rodzaj | lokal w zabudowie bliźniaczej |
| Rynek | pierwotny |
| Powierzchnia budynku | 97,26m2 |
| Powierzchnia działki | 205,5m2 |
| Ilość pokoi | 5 |
| Ilość kondygdnacji | 2 |
| Rok budowy | 2025 |
| Dojazd | droga szutrowa |
| Pokrycie dachu | dachówka cementowa |
| Dach | dwuspadowy |
| Stan techniczny | stan deweloperski |
| Media |
|
| Dodatkowe informacje |
|